DER STÄDTEBAU
Entdecken Sie das Quartier im Video
MODERN, INNOVATIV UND MITTEN IN BERLIN
Am Humboldthain in Berlin-Mitte entsteht in den nächsten Jahren ein gewerblich geprägtes, lebendiges und urbanes Quartier auf einer Fläche von neun Fußballfeldern.
Das Quartier Am Humboldthain (QAH) liegt auf dem ehemaligen Werksgelände der AEG in Berlin Mitte. Auf 234.147 m² BGF wird mit dem QAH ein primär gewerblich geprägter, offener Nutzungsmix für Wissenschaft, Laborarbeit, Büro und Produktion einen einzigartigen Ort ausbilden.
Mit einer Grundstücksfläche von rund 6,5 Hektar handelt es sich dabei aktuell um die größte gewerbliche Quartiersentwicklung innerhalb des Berliner S-Bahn-Rings.
11/25
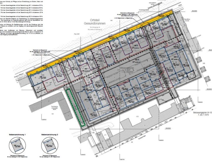
BEBAUUNGSPLAN FÜR DAS QUARTIER AM HUMBOLDTHAIN RECHTSKRÄFTIG
Mit der Veröffentlichung des Bebauungsplans hat das Quartier Am Humboldthain einen weiteren wichtigen Meilenstein erreicht. Damit ist die rechtliche Grundlage für die Entwicklung von rund 234.000 Quadratmetern flexibel nutzbarer Bruttogeschossfläche auf dem ehemaligen AEG-Areal in Berlin-Gesundbrunnen geschaffen. Das Quartier Am Humboldthain ist mit einer Grundstücksfläche von rund 6,5 Hektar eine der größten Quartiersentwicklungen innerhalb des
Öffentliche Beteiligung für das Quartier Am Humboldthain abgeschlossen.
Berlin, 20. Februar 2025: Mit dem Abschluss der öffentlichen Beteiligung zum Bebauungsplanverfahren des Quartiers Am Humboldthain (QAH) ist ein wichtiger Meilenstein erreicht. Vom 16. Dezember 2024 bis 24. Januar 2025 fand die Beteiligung der Öffentlichkeit an der Bauleitplanung für das Quartier am Humboldthain statt. Parallel dazu fand ab dem 6. Dezember 2024 die gemeinsame Trägerbeteiligung
12/24
16. – 24.01. _ BETEILIGUNG DER ÖFFENTLICHKEIT AN DER BAULEITPLANUNG
Sie haben die Möglichkeit, sich an der Planung für das Quartier Am Humboldthain im Rahmen der öffentlichen Auslegung zu beteiligen. Diese ist ein im Baugesetzbuch festgelegter Verfahrensschritt im Rahmen der formellen Bürgerbeteiligung in der Bauleitplanung (§ 3 Absatz 2 BauGB). Für die Dauer eines Monats wird der Bebauungsplan mit Begründung und den wesentlichen, bereits vorliegenden
11/24
Artists Inside / Impressionen der Gruppenausstellung im QAH
Das Artists Inside-Fellowship ist ein multidisziplinäres Stipendienprogramm mit dem Fokus auf Weiterbildung und Netzwerk. Artists Inside unterstützt aufstrebende Künstler*innen unter 35 Jahren, die in Berlin ansässig sind. Das Stipendienprogramm besteht aus Weiterbildungs- und Förderangeboten in den Bereichen Kunstmarkt, Kommunikation, Finanzen und Recht. Darüber hinaus haben die geförderten Künstler*innen die Chance, sich bei Atelierbesuchen mit Alumni